113 Summer Street Opelika, AL 36804
List Price: $260,294.00 MLS #177060
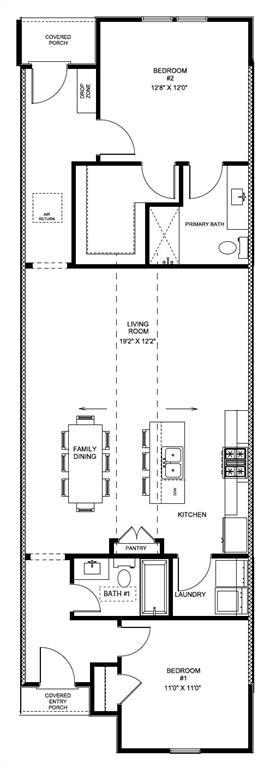
Description: Community shines bright here in Firefly! This MOVE-IN READY townhome is an interior two bedroom, two bath home comprising of 1,184 square feet. The covered front entry leads you inside the foyer with the guest bedroom and bathroom access. Past the foyer, is the dining area off of the kitchen. The kitchen extends into an open concept living area that features vaulted ceilings. The kitchen boasts stainless steel appliances, granite countertops and custom designed wooden cabinets. There is ample room for storage with an attached pantry and closets lined with wire shelving in both bedrooms and laundry room. Down the hall is the primary bedroom with ensuite and closet accessed from the bedroom. Future amenities to include swimming pool, clubhouse, pickle ball courts, playground, bocce ball, community garden, dog park, walking trail, wiffle ball field, and green space.
School System: Jeter / Morris
Neighborhood: Firefly
Lot Size: 0.06
Additional Listing Details:
| Year | 2026 |
| Beds | 2 |
| Baths | 2 |
| Total Rooms | 1 |
| Sqft | 1184 |
| Foundation | Slab |
| Interior | Ceiling Fans, Primary Bedroom Downstairs, Washer/Dryer Connection |
| Exterior | Cement Board |
| Appliances | Built-in Microwave, Dishwasher, Disposal, Electric Cook Top, Oven |
| Utilities | Sewage-Public, Total Electric, Underground Utilities, Water |
Listing Provided By: Holland Home Sales [Taft Ledbetter]
| Flooring | Carpet, Ceramic Tile, LVP |
| Storage | Attic |
| Air | Heat Pump |
| Heat | Heat Pump |
| Kitchen | Island, Kitchen/Family Combo, Pantry |
| Misc | Association Fees, Irrigation System, Restrictive Covenants, Other-See Remarks |
| Subdivision Amenities | Other-See Remarks |
| Porch | Covered, Front, Rear |
Need More Information?
Contact Us!
List Price: $260,294.00