626 Shug Jordan Parkway Auburn, AL 36830
List Price: $402,000.00 MLS #177324
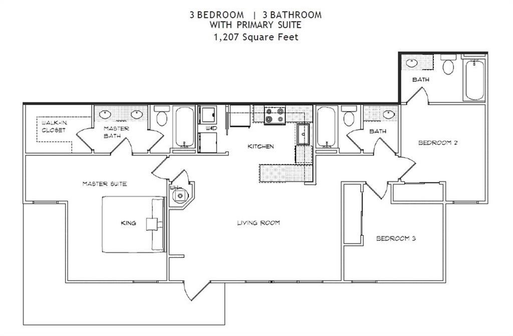
Description: Move-in ready with fully furnished option, this property offers true turnkey convenience—perfect as a game-day retreat, student residence, or full-time home. Perfect for those seeking a turnkey home or investment. Contact agent for details and pricing. Renovated 3BR/3BA Condo – Prime Location Near Auburn University! Discover modern living in this beautifully renovated 3-bedroom, 3-bathroom condo, ideally situated just 1 mile from Auburn University and 2 miles from downtown Auburn. Every detail has been thoughtfully updated, including new plumbing fixtures, cabinets, hardware, lighting, and fresh interior paint throughout. The brand-new flooring features LVP in the main areas and plush carpet in the bedrooms, complemented by sleek quartz countertops for a contemporary touch. The primary retreat boasts a spacious walk in-closet and en-suite with dual vanities! Located in a community currently undergoing major enhancements, you'll enjoy new exteriors, updated landscaping, improved parking, and refreshed amenities. The resort-style pool, fitness center, lounge, business center, and grilling area offer the perfect blend of relaxation and convenience. This condo is an exceptional opportunity in a prime Auburn location!
School System: Richland / Creekside
Neighborhood: Harper Flatts
Lot Size: 0.00
Additional Listing Details:
| Year | 1989 |
| Beds | 3 |
| Baths | 3 |
| Total Rooms | 1 |
| Sqft | 1207 |
| Foundation | Slab |
| Interior | Ceiling Fans, Washer/Dryer Connection |
| Exterior | Brick Veneer, Cement Board |
| Appliances | Built-in Microwave, Dishwasher, Dryer, Electric Cook Top, Oven, Refrigerator, Washer |
| Utilities | Sewage-Public, Water |
Listing Provided By: Berkshire Hathaway Homeservices [Ryan Roberts]
| Flooring | Carpet, LVP |
| Air | Central Electric |
| Heat | Electric |
| Kitchen | Eat-in, Updated |
| Misc | Association Fees, Restrictive Covenants |
| Subdivision Amenities | Club House, Exercise Room, Game Room, Outdoor Pool, Tennis/Racquetball |
| Porch | Covered, Front |
Need More Information?
Contact Us!
List Price: $402,000.00