205 Bottle Way Auburn, AL 36830
List Price: $422,284.00 MLS #178017
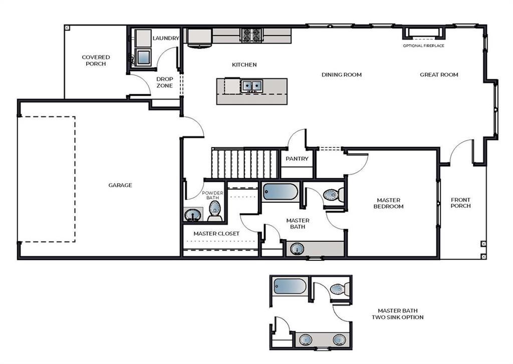
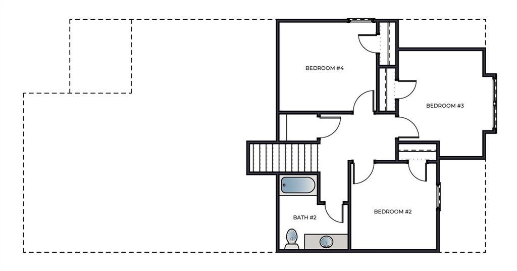
Description: New Plan & Pre-Sale opportunity in Northgate! Estimated 6months Build Time! With 4 bedrooms, 2.5 bathrooms, and a well-designed layout with 2,016sq ft the Elise B is an excellent choice for those seeking a home with both space and style. On the main floor, the home features an open-concept great room, kitchen, and dining area, ideal for entertaining. The kitchen includes a spacious island and pantry, creating an efficient space for meal prep. A convenient laundry room and powder room are also located on the first floor, adding to the home's practicality. The owner's suite is located on the first floor, offering a private retreat with a large walk-in closet and a luxurious en-suite bathroom. Upstairs, you'll find three additional bedrooms and a full bathroom, with the option of a two-sink setup for added convenience. A loft area provides extra space for relaxation or study. A covered front porch and a 2-car garage complete the floor plan, offering plenty of storage and curb appeal. The Elise B plan is perfect for families seeking both functionality and style. Northgate Amentities include firepit and dog park, with pool, pavilion and pickle ball court to come!
School System: Woodland Pines / Yarbrough
Neighborhood: Northgate
Lot Size: 0.11
Additional Listing Details:
| Year | 2026 |
| Beds | 4 |
| Baths | 2 |
| Half Baths | 1 |
| Total Rooms | 1 |
| Sqft | 2016 |
| Foundation | Slab |
| Interior | Ceiling Fans, Integrated Wiring, Primary Bedroom Downstairs, Washer/Dryer Connection |
| Exterior | Cement Board |
| Appliances | Built-in Microwave, Dishwasher, Disposal, Electric Stove, Oven |
| Utilities | Cable TV, Sewage-Public, Total Electric, Water |
Listing Provided By: Holland Home Sales [Will Dorminy]
| Flooring | Carpet, Ceramic Tile, LVP |
| Storage | Attic |
| Air | Central Electric |
| Heat | Electric, Heat Pump |
| Kitchen | Island, Kitchen/Family Combo, Walk-in Pantry |
| Misc | Association Fees, Irrigation System, Restrictive Covenants |
| Subdivision Amenities | Other-See Remarks |
| Porch | Covered, Front, Stoop |
Need More Information?
Contact Us!
List Price: $422,284.00