547 Arbor Drive Auburn, AL 36830
List Price: $589,995.00 MLS #177091
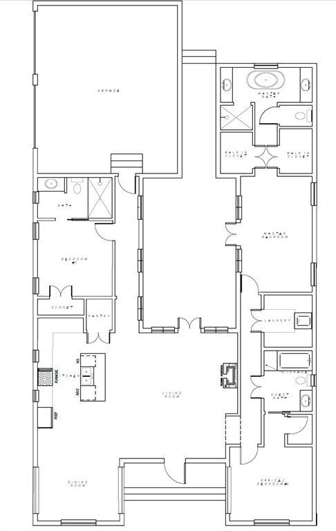
Description: Welcome to The Arbors —Auburn’s Newest Luxury Homes and Hartbrook Development's Newest Subdivision. With incredible proximity to downtown Auburn, flowing floor plans, and high-end finishes, The Arbors offers the perfect blend of style and convenience. The Henry is an incredible house that pairs the perfect blend of luxury finishes with contemporary style all packed into 1,843 SqFt while also offering the unique feature of a center house courtyard with access from the living room and master bedroom. From its open-concept design to the private main-level master suite, this home truly has it all.The front façade exudes architectural elegance with a soaring front gables, oversized windows, and recessed private front porch. Inside, the open floor plan connects the kitchen, dining room, and living room—creating a seamless flow ideal for entertaining. The kitchen features ample counter space, custom cabinetry, a large island, stainless steel appliances and a walk-in pantry. The living room is filled with natural light and provides access to the private courtyard.With the home being all one level it includes a spacious master bedroom with a private en-suite showcasing dual walk-in closet, walk-in shower, freestanding tub, and split vanities. An additional two bedrooms on the main level features their own en-suites including walk-in closets. Photos are renderings and may differ from the final product. Plans, pricing, and finishes are subject to change without notice.
School System: Cary Woods / Pick
Neighborhood: The Arbors
Lot Size: 0.21
Additional Listing Details:
| Year | 2025 |
| Beds | 3 |
| Baths | 3 |
| Total Rooms | 1 |
| Sqft | 1877 |
| Foundation | Slab |
| Interior | Ceiling Fans, Primary Bedroom Downstairs, Washer/Dryer Connection |
| Exterior | Brick Veneer, Stone/Block |
| Appliances | Built-in Microwave, Dishwasher, Disposal, Gas Stove, Refrigerator |
| Utilities | Cable TV, Gas-Natural, Underground Utilities, Water |
Listing Provided By: Keller Williams Realty Auburn Opelika [Adam Dorn]
| Flooring | Carpet, Tile, Wood |
| Air | Central Electric |
| Heat | Electric, Heat Pump |
| Kitchen | Breakfast Room, Eat-in, Island, Kitchen/Family Combo, Walk-in Pantry |
| Misc | Association Fees, Bonus Room, Restrictive Covenants |
| Subdivision Amenities | None |
| View | None |
| Porch | Screened, Other-See Remarks |
Need More Information?
Contact Us!
List Price: $589,995.00